
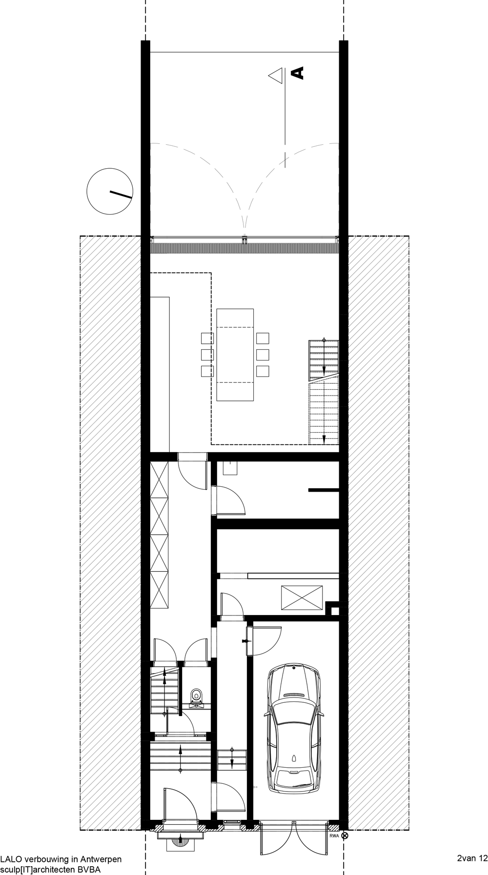
Par staklenih vrata, teških oko četiri tone i 6 metara visine, okrenutih ka bašti, pri renovaciji ovog objekta koristio je studio “Sculp IT”.
Dupla vrata, koja idu u visini dva sprata, opisana od strane Belgijskog studija “Sculp IT” kao “Najveći pivot prozor na svetu” – formiraju zadnji deo kuće, povezivajući kuhinju i trpezariju.
Objekat prethodno nije imao nikakav odnos sa baštom iza.
Arhitekte Pieter Peerlings i Silvia Mertens su rasčistili put kako bi sva tri nivoa nove kuće, nazvane LALO, mogla da koriste ovu prirodnu svetlost.
Ovaj par vrata je naručen od Švajcarskog proizvođača, sve zajedno sa neverovatnom dostavom na lokaciju. Staklo je postavljeno u ovaj gigantski ram, a korišćen je pivot mehanizam.
![Sculp[IT] – Pieter Peerlings i Silvia Mertens / foto: Luc Roymans](https://www.prozorivrata.com/wp-content/uploads/2015/06/LALO-by-SculpIT_dezeen_468_0.jpg)
“Jednostavan, i savremen stakleni zadnji deo kuće, poseduje najveći pivot sistem na svetu, 3m x 6m u visinu. Ovo čini objekat, kućom budućnosti” – rekli su Peerlings i Mertens, koji polažu pravo na činjenicu da su izgradili najužu kuću u Holandiji. “Mi nismo uradili mnogo, ali ono što jesmo uradili, na mnogo načina se odrazilo na način života u toj kući”.
Prevedeno sa stranice: dezeen.com
![Pivot vrata Sculp[IT] – Pieter Peerlings i Silvia Mertens](https://www.prozorivrata.com/wp-content/uploads/2015/06/LALO-by-SculpIT_dezeen_468_4.jpg)
![Pivot vrata Sculp[IT] – Pieter Peerlings i Silvia Mertens](https://www.prozorivrata.com/wp-content/uploads/2015/06/LALO-by-SculpIT_dezeen_468_6.jpg)
![Sculp[IT] – Pieter Peerlings i Silvia Mertens](https://www.prozorivrata.com/wp-content/uploads/2015/06/LALO-by-SculpIT_dezeen_468_23.jpg)
![Sculp[IT] – Pieter Peerlings i Silvia Mertens](https://www.prozorivrata.com/wp-content/uploads/2015/06/LALO-by-SculpIT_dezeen_468_15.jpg)














